Trilocale in vendita

Firenze, Lungarno Colombo - Bellariva
€ 495.000
3 locali 3 locali
95 Mq 95 Mq
1 bagno 1 bagno

Trilocale in vendita

Firenze, Lungarno Colombo - Bellariva

Descrizione annuncio

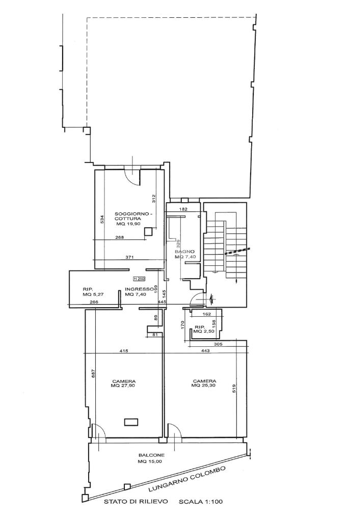
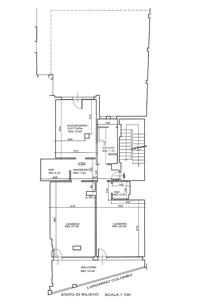
Lungarno Colombo: al primo piano di palazzina signorile proponiamo in vendita luminoso appartamento di 95mq calpestabili, dotato di due terrazze abitabili, con ampio posto auto in garage condominiale.

L'immobile, unico al piano, si compone di ingresso, ampio disimpegno, zona living con accesso alla terrazza abitabile tergale di 85mq, due grandi camere da letto dalle quali si accede al secondo terrazzo abitabile di 15mq, cabina armadio e servizio finestrato.

Ottime condizioni.

Libero subito.

Spese condominiali pari a circa 200€/mese, comprensive di riscaldamento, acqua calda e condizionamento.

Per informazioni 0556236041 oppure 3917489829 (anche Whatsapp)

Mostra tutto

Nelle vicinanze

Trasporto pubblico Trasporto pubblico
stazione di Firenze Campo di Marte
stazione di Firenze Campo di Marte
1,4 Km
stazione di Firenze Rovezzano
stazione di Firenze Rovezzano
2,3 Km
Unità
Unità
2,7 Km
Valfonda - Stazione Santa Maria Novella
Valfonda - Stazione Santa Maria Novella
2,8 Km
Ponte da Verrazzano
Ponte da Verrazzano
10 m
Ricariche auto elettriche Ricariche auto elettriche
Eneldrive Lungarno Ferrucci
220 m
Eneldrive (ex SILFI) Ravenna
260 m
Eneldrive (ex SILFI) Leon Battista Alberti
440 m
Eneldrive (ex SILFI) Ghirlandaio
480 m
Eneldrive (ex SILFI) Gualfredotto
550 m
Scuole Scuole
Istituto San Giuseppe
400 m
Istituti Paritari Cavour Pacinotti
410 m
Scuola Don Bosco
490 m
Scuola Primaria "Gaetano Pilati"
550 m
Scuola Primaria "Andrea Del Sarto"
680 m
Farmacia Farmacia
Antica Farmacia Morelli
400 m
Farmacia comunale di Bellariva
420 m
Farmacia
590 m
Farmacia Bargioni
660 m
Farmacia Ninci
800 m
Ospedali Ospedali
Ospedale Piero Palagi
1,4 Km
CUR 112 TOSCANA
1,5 Km
Villa Donatello
1,8 Km
Ospedale di Santa Maria Nuova
1,9 Km
Supermercati Supermercati
Coop.fi
430 m
Conad City
770 m
Coop
830 m
Lidl
1,2 Km
Esselunga
1,3 Km
Negozi Negozi
Cosi
430 m
Eli Krea
440 m
Sei di Cuori
470 m
Mirella
480 m
Negozi
490 m
Bar Bar
Al Bar
280 m
Bar Migliorini
370 m
Bar
370 m
Barvino
380 m
Bar L'Etrusco
490 m
Ristoranti Ristoranti
Ristoranti
280 m
Osteria Del Nacchero
380 m
Antica Trattoria Da Beppino
390 m
Crepapelle
430 m
Trattoria Gigi
430 m
Mostra tutto

Caratteristiche

Rif.:
61141735
Piano:
1 di 5 (Piano basso)
Posti auto:
1
Terrazzi:
2
Camere da letto:
2
Arredamento:
Assente
Mostra tutto
Prezzo Prezzo
€ 495.000
Rata mutuo Rata mutuo
€ 2.337 / mese
Spese annue Spese annue
€ 2.400
Proponi il tuo prezzoProponi il tuo prezzo
Immobile valutato con T·Valuta

Classe Energetica

G
G
G
G
G
G
G
G
G
EP globale non rinnovabile:
176.00 kW h/m² anno
EP globale rinnovabile:
1.00 kW h/m² anno
EP invernale del fabbricato:
EP estiva del fabbricato:
Anno di costruzione:
1960
Riscaldamento:
Centralizzato
Tipo impianto:
A radiatori
Tipo alimentazione:
Metano

Ti interessa visionare l'immobile?

Fissa un appuntamento  Fissa un appuntamento

Richiedi informazioni

Clicca su Leggi per aprire l'informativa
* Questi campi sono obbligatori

Calcola il tuo mutuo

Semplice e senza impegno
Anticipo

( % )
Mutuo

( % )

pochi semplici passi

inserisci i tuoi dati
Questionario completato
Grazie per aver richiesto un appuntamento senza impegno con un nostro Consulente del Credito e Assicurativo.

Hai inserito correttamente tutti i dati necessari e a breve riceverai una e-mail con un link da convalidare per inviare i tuoi dati.
Affiliato
Studio Bellariva Sas
Via Bellariva, 62 50136 Firenze (FI)

Il nostro staff


  • Simone Zauli
    Affiliato

  • Muriel Mazzola
    Responsabile

  • Lapo Torrini
    Collaboratore

  • Francesco Vinagli
    Collaboratore

  • Giulia Vespro
    Coordinatrice
Via Bellariva, 62 50136 Firenze (FI)
Zona: Alberti-Bellariva-Varlungo-Rovezzano
Mostra su mappa
Orari: Lun-Ven 09:00-13:00/15:30-20:00 Sab 09:00-13:00/15:30-19:00 Dom su appuntamento.
Affiliato
Studio Bellariva Sas
Via Bellariva, 62 50136 Firenze (FI)

2025 Tecnocasa Franchising S.p.A. - P. IVA 08365160152 - Via Monte Bianco 60/A 20089 Rozzano (MI). Ogni agenzia ha un proprio titolare ed è autonoma. Privacy policy | Policy utilizzo | Cookie policy